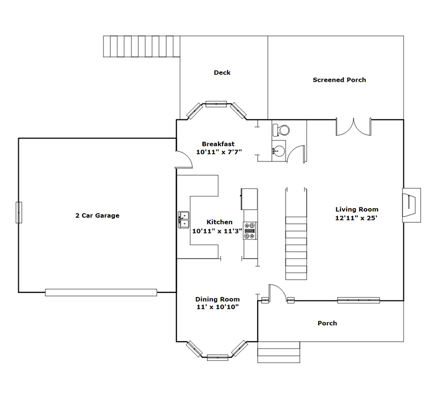
Click an icon on the floor plan below. Once opened you can drag the corresponding content to your prefered location!
Photo Icon -
Information Icon - 
Photo Icon -




























Presented By

Property Details
Total
2195
Main Level
945
Upper Level
1250
Garage
502
4
Beds
2 / 1
